top of page
Search

Architecture: Where your current needs are met

  • anelyrodriguez17
  • May 20, 2020
  • 1 min read

Updated: Sep 21, 2020

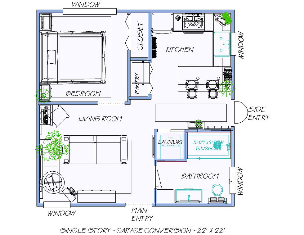
Garage Conversion to ADU (Accessory Dwelling Unit) Ideas



ree

ree



ree

ree

ree


ree

ree






 
 
 

Comments


  • Instagram
  • facebook

©2020 by MDS DRAFTING. Proudly created with Wix.com

bottom of page